机动车驾驶人考试场地及其设施设置规范Word文档下载
目 次
前言. II
1 范围. 1
2 规范性引用文件. 1
3 术语和定义. 1
4 场地设置一般要求. 2
5 科目一考试场地设置. 3
6 科目二考试场地设置要素. 4
7 科目二考试路线布置与平面设计. 5
8 科目二考试场地项目设施. 6
9 场地基础设施. 15
10 科目三考试路段设施设置. 17
附录A(资料性附录) 场地运行车辆容量和场地期望考试人次计算方法. 18
前 言
本标准中第1章、5.2.1、5.2.2、6.2、7.3、第8章、9.1、9.2.1、9.2.2、第10章为强制性的,其余为推荐性的。
本标准按照GB/T 1.1-2009给出的规则起草。
本标准代替GA/T 845-2009《机动车驾驶人考试场地及其设施设置规范》,与GA/T 845-2009 相比主要内容变化如下:
-
修改了“科目一考试场地设置”(见第5章,2009年版的第5章。);
-
修改了“考试车型”(见6.2,2009年版的第6.2条。);
-
增加了“考试项目设置原则”(见8.1);
-
增加了“小型汽车倒车入库”(见8.2);
-
增加了“桩考”(见8.3);
-
增加了“坡道定点停车和起步”(见8.4);
-
增加了“侧方停车”(见8.5);
-
增加了“通过单边桥”(见8.6);
-
增加了“曲线行驶”(见8.7);
-
增加了“直角转弯”(见8.8);
-
增加了“通过限宽门”(见8.9);
-
增加了“通过连续障碍”(见8.10);
-
增加了“起伏路行驶”(见8.11);
-
增加了“窄路掉头”(见8.12);
-
增加了“模拟隧道”(见8.13);
-
增加了“模拟连续急弯山区路”(见8.14);
-
增加了“模拟高速公路”(见8.15);
-
增加了“模拟雨(雾)天湿滑路面”(见8.16);
-
增加了“模拟紧急情况处置”(见8.17);
-
修改了“场地电力与照明、场地智能信息系统”(见第9章,2009年版的第9章、第10章。);
-
增加了“科目三考试路段设施设置”(见第10章)。
本标准由公安部道路交通管理标准化技术委员会提出并归口。
本标准负责起草单位:公安部交通管理科学研究所。
本标准参加起草单位:四川省公安厅交通警察总队、西南交通大学建筑学院、辽宁省公安厅交通警察总队、成都市公安局交通警察支队、抚顺市公安局交通警察支队。
本标准主要起草人:曹锦、潘汉中、籍东辉、张政、宋加冰、何磊、汪浩、蔚勇华、王欣、华超、秦东炜、陈斌。
本标准的历次版本发布情况为:
——GA/T 845-2009。
机动车驾驶人考试场地及其设施设置规范
本标准规定了机动车驾驶人考试场地及其设施的术语和定义、设计设置内容、要求指标。
本标准适用于新建和改建机动车驾驶人道路交通安全法律、法规和相关知识考试科目(科目一),场地驾驶技能考试科目(科目二),道路驾驶技能和安全文明驾驶常识考试科目(科目三)的场地以及相关设施的设置。
下列文件对于本文件的应用是必不可少的。凡是注日期的引用文件,仅注日期的版本适用于本文件。凡是不注日期的引用文件,其最新版本(包括所有的修改单)适用于本文件。
GB 5768.2 道路交通标志和标线 第2部分:道路交通标志
GB 5768.3 道路交通标志和标线 第3部分:道路交通标线
GB 50034 建筑照明设计标准
GB 50057 建筑物防雷设计规范
GB 50162 道路工程制图标准
GB 50016 建筑设计防火规范
GB 50311 综合布线系统工程设计规范
GB 50343 建筑物电子信息系统防雷技术规范
CJJ 37 城市道路设计规范
CJJ 45 城市道路照明设计标准
GA 1026 机动车驾驶人考试内容和方法
GA/T 1028.3 机动车驾驶人考试系统通用技术条件 第3部分:场地驾驶技能考试系统
JTG D80 高速公路交通工程及沿线设施设计通用规范
JTG D81 公路交通安全设施设计规范
下列术语和定义适用于本文件。
场地运行车辆容量 test field capacity for vehicle
科目二考试场地内能够同时顺畅运行的最多考试车辆数量。
场地小时期望考试人次 expected number of persons examined per hour
科目二考试场地内设计期望每小时能够完成考试的应考人员数。
主路 main road
科目二考试场地内布置运行车速30km/h以上考试项目和连接各考试区域的道路。
次路 secondary road
科目二考试场地内连接考试单元与考试单元、考试单元与主路,并可布置通过性考试项目的道路。
支路 branch road
科目二考试场地内用于布置低速考试项目的道路。
摩托车路 motorcycle road
科目二考试场地内用于布置摩托车驾驶考试专用项目的道路。
-
场地设置一般要求
-
一般规定
-
场地规划布局应统筹考虑交通组织、考试路线及出入口、路网结构、道路种类、建筑布置、竖向设计、绿化及空间环境等因素,合理布局。
-
应设置停车区、待考区、服务区等功能性场所,注意公共卫生设施的配套。场地应按人车分离的原则布置分隔、导流、无障碍通道等设施,合理组织人流、车流,确保安全。待考区域内应设置道路交通安全宣传教育展牌、考试须知、考试流程、考试项目、评判标准和考试员照片、警号,以及考试工作纪律等公示栏。
-
场地建筑布置与设计应符合相应的建筑设计规范。
-
场地道路设计应参照CJJ 37。路面设计轴载:标准轴载BZZ-100。除考试项目路段外,积雪或冰冻地区的主路最大纵坡不应大于3.5%,其它地区主路最大纵坡不应大于6%。道路排水应顺畅,不应有积水。
-
场地道路路面两侧与路外场地落差超过0.5m时,应在道路边缘设置防护设施。场地通道与道路衔接出入口处应满足行车视距的要求。
-
采用路缘石作为道路边缘线的,路缘石结构与强度应能承受考试车辆碾压,不应错位、倾倒。
-
考试项目土建设施施工误差应控制在±1%以内,其中连续障碍项目圆饼和单边桥项目桥体尺寸误差均取值±1cm。
-
绿化布置应符合道路建筑限界要求并不应妨碍行车视距。
-
场地竖向规划设计应包括地形、地貌的合理利用、确定道路控制高程和地面排水规划。当自然地形坡度大于8%时,场地应采用台式布置。台地之间应用挡土墙或护坡连接。
-
考试场地设计
-
场地设计分为初步设计和施工图设计。
-
初步设计应包括技术方案、设计图纸、项目功能指标计算、主要设备材料清单和工程概算等四项内容。其中:
-
技术方案包括:现状与需求分析;总体设计,结构、功能、通信广播、供电、环境适应性设计,实施计划,其他约定设计内容。
-
设计图纸包括:设计说明;场地平面图;建筑及内部布置平面图;标志标线设置方案和各车型考试运行方案。
-
项目功能指标计算包括:场地道路里程、车道里程指标、科目设施分类数量、场地人车容量及期望考试人次计算书。场地运行车辆容量和场地期望考试人次计算方法参见附录A。
-
设计单位根据经批准的初步设计文件等开展施工图设计。项目竣工后,设计单位应根据施工图设计图纸、图纸会审记录、设计变更等进行竣工图绘制。
-
场地考试科目设施设计工程制图应符合GB 50162的规定。其他项目设计应符合国家或行业相关制图标准要求。
-
科目一考试场地设置
-
场地组成
场地应具有计算机考场、登录室、监控室、待考区。有条件的,可设置资料室、办公室。允许一区多用,但计算机考场应与待考区分开。计算机考场宜设置于建筑物低层。
-
场地布置
-
计算机考场应实现封闭管理,设置监控设备对全考场实施有效监控,并向社会和上级单位提供监督音像。
-
计算机考场应设置考生和考试员身份识别装置。
-
计算机考场应视情设置残疾人专用考位。
-
场地面积
计算机考场面积可按式(1)计算。
S=kA …………………………………………………………………(1)
式中:
S----计算机考场面积,单位为平方米(m2);
A----考位总数,单位为个;
k----单位考位面积,取值宜为(1.5~3)平方米/个。
计算机考场照明的照度应大于等于300lx。其他照明要求可参照GB 50034规定。
场地应设置紧急出口和应急通道,消防安全设计应符合GB 50016规定。
考试场地道路按照功能分为主路、次路、支路和摩托车路四类。各类道路设计行车速度参考值如表1。
表1 各类各级道路设计行车速度参考值
单位为千米每小时
|
道路等级
|
主路
|
次路
|
支路
|
摩托车路
|
|
设计行车速度
|
30~50
|
10~30
|
<10
|
5~20
|
科目二考试车型应符合下列要求:
-
大型客车:车长大于等于9m的大型载客汽车;
-
牵引车:车长大于等于12m的半挂汽车列车;
-
城市公交车:车长大于等于9m的大型载客汽车;
-
中型客车:车长大于等于5.8m的中型载客汽车;
-
大型货车:车长大于等于9m,轴距大于等于5m的重型载货汽车;
-
小型汽车:车长大于等于5m的轻型载货汽车,或者车长大于等于4m的小型载客汽车;
-
小型自动挡汽车:车长大于等于5m的轻型自动挡载货汽车,或者车长大于等于4m的小型自动挡载客汽车;
-
低速载货汽车:车长大于等于5m的低速载货汽车;
-
普通三轮摩托车:至少有四个速度挡位的普通正三轮摩托车或者普通侧三轮摩托车;
-
普通二轮摩托车:至少有四个速度挡位的普通二轮摩托车;
-
残疾人专用小型自动挡载客汽车:加装符合相关标准的肢体残疾人驾驶汽车的操纵辅助装置,且车长大于等于4m的小型自动挡载客汽车。其中,申请人为右下肢残疾的,考试车应当加装制动和加速迁延控制手柄或者制动和加速迁延控制踏板;申请人为双下肢残疾的,考试车应当加装方向盘控制辅助手柄、制动和加速迁延控制手柄、转向信号迁延开关,或者驻车制动辅助手柄;
-
考试车应当设置明显的考试用车标志,除三轮汽车和摩托车外的考试车应当安装供考试员使用的副制动踏板和后视镜装置。残疾人考试用车应当在车身前部和后部分别设置专用标志;
-
其他考试用车的条件,由省级公安机关交通管理部门确定。
-
道路建筑限界
各类道路建筑限界应符合图1的规定。

W——行车道宽度,主路取值大于等于14.4m,次路取值大于等于6.4m,摩托车路取值大于等于3.5m,支路按科目要求确定;
L——侧向净空宽度,各类道路均取值1m,弯道外侧取值1.5m;
S——路缘带宽度,主次路取值0.3m,支路、摩托车路取值(0~0.3)m;
H——净空高度,主次路取值4.5m,支路取值4m,摩托车路取值2.5m;
h——路缘石高度,各类道路均取值(0.1~0.2)m;
H/——路侧净空高度,主次路、支路取值3.3m,摩托车路取值2m;
E——建筑限界顶角宽度,各类道路均取值1m。
图1 道路建筑限界
-
科目二考试路线布置与平面设计
-
场地平面布置
-
场地平面布置应按场地运行车辆容量和场地小时期望考试人次的需求布设。同时做好考试路线方案设计,自然形成车辆流动的考试线路。正确组织车流、人流、合理布设各种交通工程设施。场地科目平面线形应与地形、地质、水文等结合。
-
道路平面设计、纵向设计应处理好直线与平曲线的衔接,合理设置缓和曲线、超高、加宽等,其设置标准参照CJJ 37。当计算行车速度不大于10km/h时,按照考试项目要求确定,原则上道路转弯半径除考试科目有规定者外,大型车道应大于等于12m,小型车道应大于等于8m。其中小型汽车、摩托车考试单元内路缘石圆曲线半径通常应大于等于1m,大型汽车、中型汽车考试单元内路缘石圆曲线半径通常应大于等于1.5m。
场地考试项目处应施画项目名称路面标识,进入项目前10m内应设置项目名称指引标志,需要增设项目预告标志的可在50m外设置。标识、标志设置应符合路段运行车速和GB 5768.2、GB 5768.3的要求。
-
道路的宽度应大于考试项目图形宽度要求,路缘石内侧应离考试项目图形线外侧30cm以上。
-
视距
-
科目二考试场地内不应存有妨碍行车视线的障碍物,其视野范围内离地高度1m~2m区域中不应有妨碍观察车辆视线的障碍物。
-
有条件的应设立观察点,能够观察各运行考试车辆和考场的整体情况。
-
隔离
场地与外界应采用物理隔离。
考试项目可以组合设置。项目衔接处应设置缓冲路段,一般应大于1.5倍考试车长。
科目二考试项目按考试车型分别设置,设置项目应符合GA XXXX(机动车驾驶人考试内容和方法)要求。驾驶技能考试系统设置应符合GA/T XXXX.3(机动车驾驶人考试系统通用技术条件 第3部分:场地驾驶技能考试系统)的要求。
小型汽车、小型自动挡汽车、残疾人专用小型自动挡载客汽车和低速载货汽车倒车入库项目图形设计一般应符合图2所示,根据实际情况也可选择和图3相同的图形设计。有条件的可在库侧增设障碍物。

…… 控制线;
W ——库宽:取值车宽(不含倒车镜,下同)加0.6m;
L ——车位长:取值车长加0.7m;
S ——车道宽:取值车长的1.5倍;
h ——车库距控制线距离:取值车长的1.5倍。
图2 倒车入库项目图形设计
-
桩考
-
大型客车、城市公交车、中型客车、大型货车桩考
大型客车、城市公交车、中型客车、大型货车桩考项目图形设计应符合图3的规定。有条件的可在库侧增设障碍物。

○ 桩杆;
── 边线。
图形尺寸:
L ——桩(库)长:取值二倍车长,前驱动车加0.5m;
w ——桩(库)宽:取值车宽加0.7m;
W ——车道宽:取值车长的1.5倍;
S ——起止点距甲乙库外边线距离:取值1.5倍车长。
图3 大型客车、城市公交车、中型客车、大型货车桩考项目图形设计
牵引车桩考项目图形设计应符合图4的规定。

── 库边线;
○ 桩杆;
图形尺寸:
甲、乙库长取值整车长加1m,库宽取值车宽的1.5倍;
甲库四角设桩杆,乙库在靠近甲库的一角设桩杆;甲、乙库之间相距2倍车长,分设在路中线的两侧;
W ——车道路宽:取值3倍车宽。
图4 牵引车桩考项目图形设计
三轮汽车桩考项目图形设计应符合图5的规定。

○ 桩杆;
── 边线。
图形尺寸:
桩间距取值车长加40cm;桩与边线的距离取值车宽加30cm;起终点线距最近桩杆距离取值2倍车长。
图5 三轮汽车桩考项目图形设计
普通三轮摩托车、普通二轮摩托车、轻便摩托车桩考项目图形设计应符合图6的规定。

○ 桩杆;
── 边线。
图形尺寸:
桩与边线的距离取值为车宽加30cm;
桩间距取值为:普通和轻便二轮摩托车为车长加50cm;正三轮摩托车为车长加40cm;侧三轮摩托车为车长加80cm;
终止线距最后一根桩杆距离取值3倍车长。
图6 普通三轮摩托车、普通二轮摩托车、轻便摩托车桩考项目图形设计
坡道定点停车和起步项目图形设计应符合图7的规定。

图7 坡道定点停车和起步项目图形设计

定点停车位
…… 控制线;
── 停车桩杆线,线宽取值0.3m;
i ——坡度,取值10%;
l ——坡长,取值(含竖曲线全长):大型车大于等于30m,小型车大于等于20m,摩托车大于等于8m;
R ——竖曲线半径,取值大于30m;
S1、S2 ——停车控制线到停车桩杆线中心距离,取值0.65m。
图7 坡道定点停车和起步项目图形设计(续)
上坡起步坡道坡度路段上端处设起点标线,起点标线为单停车线实线。
定点停车停车点位应设停车让行标志、停车桩杆线,停车桩杆线前后设停车控制线,设置位置应在坡底向上1.5倍车长以上,坡顶缓坡以下。标志标线设置应当符合GB 5768.2、GB 5768.3的要求。
侧方停车项目图形设计应符合图8。有条件的可在库前后增设障碍物。

……—控制线;
L ——车位长,大型客车为1.5倍车长减1m,小型车辆为1.5倍车长加1m,其他车辆为1.5倍车长;
W ——车位宽,车宽加0.8m;
w ——车道宽,1.5倍车宽加0.8m。
图8 侧方停车项目图形设计
通过单边桥项目图形设计应符合图9。

L ——桥面长度,1.5倍车辆轴距;
W ——桥面宽度,0.2m;
H ——桥面高度,(0.07~0.12)m;
? ——左右桥间距,牵引车挂车为2倍轴距,三轮汽车为3倍轴距,其他车辆为2.5倍轴距;
w——左右桥错位间距,车辆轮距加1m;
S ——桥面斜坡长, (0.5~1.7)m;
桥面直角适度倒角。
图9 通过单边桥项目图形设计
曲线行驶项目图形设计应符合图10。

半径:大型货车、大型客车、牵引车等取值12m,中型客车、低速载货汽车取值9.5m,小型汽车取值7.5m;
路宽:大型货车、大型客车取值4m,牵引车取值7m,中型客车、低速载货汽车取值3.7m,小型汽车取值3.5m;
弧长:八分之三个圆周。
图10 曲线行驶项目图形设计
直角转弯项目图形设计应符合图11的规定。

L——路长,大于等于1.5倍车长;
W ——路宽,小型汽车为轴距加1m,牵引车前轴距加4m,其他车辆为轴距加0.5m。
图11 直角转弯项目图形设计
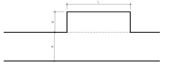
通过限宽门项目图形设计应符合图12所示。

● 限宽门标杆;
−− 道路中心线;
S ——路宽,取值大于等于7m;
W ——限宽门宽,取值车宽加0.7m;
L ——限宽门前后间距,取值3倍车长;
图12 通过限宽门项目图形设计
通过连续障碍项目图形设计应符合图13所示。


路宽:取值7m;
圆饼直径:取值0.7m,B、C、D、E圆饼中心点偏离路中心线距离取值1m;
饼高:取值0.1m;
圆饼间距:指相邻两块圆饼中心点投影在路中心线上之间的距离;大型客车、城市公交车、大型货车圆饼间距为2倍车辆最前轮轴至最后轮轴距,牵引车圆饼间距为1.5倍轴距(轴距是牵引车前轴至挂车最后轴的轴距),其他汽车圆饼间距为2.5倍的车辆轴距;
圆饼数量:牵引车只设A、B、C三个圆饼,其他车辆设置六个圆饼。
图13 通过连续障碍项目图形设计
起伏路行驶图形设计应符合图14所示。

L——凹凸路引道及间距长度,大于车辆的1.5倍轴距;
h——凹路深及凸路高,取值(0.06~0.12)m;
W——路宽,各类汽车道均取值大于等于3.5m;
l——凹路及凸路长度,车轮直径加0.6m。
图14 起伏路行驶项目图形设计
牵引车窄路掉头路段直线长取值大于等于30m,路段宽取值14m;
其它车型窄路掉头路段直线长取值大于等于20m,路段宽取值9m;
各车型窄路掉头路段车头驶抵方向侧向净空取值大于等于2m,车尾倒车方向侧向净空取值大于等于4m。
考试用模拟隧道为行车道侧向及上方遮光设施。模拟隧道内无照明,其最暗处白天照度取值小于50lx;
模拟隧道直线行车道长度取值大于等于100m,模拟隧道通常可布置为弯道,行车道长度取值大于等于60m;模拟隧道内净空取值符合6.3的要求;
模拟隧道入口和出口应当设置前照灯使用标志,标志设置符合GB 5768.2的要求。
-
模拟连续急弯山区路
-
模拟连续急弯山区路至少由两个以上不同方向的弯道组成,根据实际情况,可选择S型、U型等不同类型弯道组合设计,纵坡3%~5%、弯道超高和加宽,规范设置限速标志和警告标志,道路直线段设置中心黄色单虚线,弯道段设置中心黄色单实线。
-
模拟连续急弯山区路项目示意图见图15。

S——引道长度,取值大于等于50m;
W1——直线路宽,取值7m;
l——弯道间距,取值(0~30)m;
W2——弯道宽,取值(9~10)m;
弯道外缘半径取值(40~60)m;
弯道外缘弧长取值大于等于1/3圆周。
图15 模拟连续急弯山区路项目示意图
-
模拟高速公路
-
模拟高速公路路面工程及设施应符合JTG D80要求,路段长大于等于400m,至少设置同向两个车道,有条件可设应急停车带,同时设置入口和出口匝道。
-
模拟高速公路应参照GB 5768.2、GB 5768.3设置标志标线,主要包括:入口指示标志,分道限速标志、地面限速标识,出口预告标志、出口指示标志、出口匝道限速标志,有条件的还可设置可变信息牌。
-
模拟雨(雾)天湿滑路面
-
模拟湿滑路面附着系数不大于0.3,长大于等于30m,宽大于等于4m。湿滑路面外侧应设置对车辆无损的安全防护设施。
-
模拟雨(雾)天气应能达到中雨(雾)效果。
-
模拟紧急情况处置
模拟紧急情况处置项目考试结合其它场地考试项目进行。
-
场地基础设施
-
交通工程设施
-
交通工程及其设施应按照“保障安全、提供服务、利于管理”的原则进行设计。安全设计应符合相关标准要求。道路交通设施不应存在刚性棱角等可能造成人员损伤的尖锐凸出部位。
-
考试场地交通标志与标线设置应符合GB 5768.2、GB 5768.3要求。对于场地考试项目应设置指示标志和指路标志。项目名称标志牌参照地名设施标志形式设置。
-
道路一侧至路肩边缘不足2m存在大于等于1m落差的水域、铁路等路段应设置路侧护栏。护栏防撞等级应大于等于JTG D81中规定的B级。
-
道路侧向净空范围内或道路转弯、分流路口等处存在可能与车辆发生刚性碰撞的物体前应设置有效的消能物体或设施。
-
安全管理设施
-
考试场地应设置视频等监控设备。
-
场地应设置相关信息公告设施,设施内容包括:场地设施分布图、考试方案诱导图、场地运行服务规章公告、考试组织动态信息公告等。
-
考试场地应配备消防设施、设备。有条件的场地可配备紧急救护药品和设备以及相应安全监控设备。
-
场地应视需要配备饮水机等必要的便民服务设施,休息座椅应当满足待考需求。
-
场地给排水
考试场地建设应有完整的给排水设计。给水设施应满足场地设施办公、生活、绿地和消防的需要。排水设施应保证场地设施正常使用和路基、路面不因积水而损毁。给排水设施应有规范的维护设置。
-
电源及供电
-
供电电源就近引自附近的变配电所,宜按三级负荷进行供电。电源应选用交流220V或380V,三相四线制系统。对考试设备应当设置不间断备用电源。总配电装置应设置在专门的配电室内。
-
一般负荷宜采用树干式配电,集中负荷或重要负荷宜采用放射式配电。供电电源点至配电装置的供电线路宜采用电缆敷设。至室外各用电设备的线路宜采用电缆埋地敷设。
-
系统应采用TN-S接地故障保护。至室外灯具的线路需设置PE线。穿线用的保护金属管及灯具金属部分应与PE线连接。PE线应与相线等截面。总配电装置处应设总等电位装置。
-
场地内建筑物、构筑物防雷设计应符合GB 50057要求。高杆灯应设避雷针进行保护,并利用金属灯杆作引下线。每盏高杆灯处应设置独立的接地装置,穿线用的金属保护管应与该装置连接。
-
照明设施按场地使用需求设置。道路照明按CJJ 45中Ⅲ级执行,其它道路及场所照明按GB 50034有关条款执行。
-
场地智能信息系统
-
通信网络系统
-
通信网络系统应能为场地的拥有者(管理者)及场地内的各个使用者提供有效的信息接收、存贮、处理、交换、传输等信息服务。
-
场地内根据需要和相关规定,可分别设置行业信息、公共信息网络系统。有两套以上网络系统的场地,应作好不同网络间的物理隔离。
-
弱电防雷系统
场地应结合建筑物防雷要求设置弱电防雷系统。系统设计应符合GB 50343的要求。
场地应采用综合布线系统,并能满足场地内语音、数据、图像、监控等系统中信号传输的要求。系统设计应符合GB 50311的要求。
-
科目三考试路段设施设置
-
道路要求
-
科目三道路驾驶技能考试路段应包含以下内容:
-
双向4车道道路;
-
双向2车道道路;
-
有信号控制交叉口;
-
无信号控制交叉口;
-
常用标志、标线;
-
学校区域、公交车站、人行横道等设施或模拟的标志标识。
-
采用通行社会车辆的混和交通道路,汽车单向流量每小时不少于60辆。
-
大型车每条考试路线应不少于10km,小型车每条考试路线应不少于3km,每种车型考试路线设置应不少于3条。
-
其它要求
-
考试路段起点和终点应设置明显指示标志,路段中每公里设置里程标志。
在通往考试路段的道路明显处,应设置醒目的考试路线警告标志。警告标志式样应符合GB 5768.2的要求。
-
考试路段具有危险路段的地方,应设置路侧护栏等安全防护设施。安全防护设施的设置应符合JTG D81的规定。
-
科目三考试车型应符合6.2要求,夜间考试的车辆应安装灯箱、反光标识等发光、反光装置。
-
科目三安全文明驾驶常识考试场地应参照科目一场地设置。
场地运行车辆容量和场地期望考试人次计算方法
A.1 场地运行车辆容量
A.1.1场地运行车辆容量计算
………………………………………(A.1)
式中:
Q ——场地运行车辆容量总数,单位为辆;
Q1 ——桩考场地运行车辆数,单位为辆;
Q2 ——其他场地考试正常运行车辆数,单位为辆。
A.1.2 桩考场地运行车辆容量计算
确定桩考场地车辆容量按式(A.2)计算。
……………………………………(A.2)
式中:
n ——桩考考试单元场地数;
N ——每个桩考考试单元内布置的桩考库数;
K ——修正系数,每单元内桩考车库布置相互无干绕时k=1,桩考车库同向无间距布置时k=0.5,桩考车库反向无间距布置时k=0.8。
A.1.3 其他场地考试车辆容量计算
确定其他场地考试车辆容量按式(A.3)、式(A.4)计算。
………………………………………(A.3)
………………………………………(A.4)
式中:
q1 ——主、次路最大运行车辆数,单位为辆,当实际道路驾驶车辆不在场地内运行时,其取值可略等于q2;
S ——主、次路车道总长度,次路按其总长的1/2计入,单位为米(m);
L ——主、次路上车头间距,其取值范围约等于车道设计运行车速值,单位为米(m);
q2 ——除限宽门装置以外的其它项目设施个数,但当这些设施设于主、次路上时,每设一处折减干路长度250m,(干路运行车速按30km/h计,低速设施平均损失时间按30s计算),当折减值 为负时折减车辆数。
A.2 场地小时期望考试人次
A.2.1 桩考场地小时期望考试人次按每个标准考库每小时考核10人计算。
A.2.2 其他场地小时期望考试人次按式(A.5)、式(A.6)计算。
………………………………………(A.5)
………………………………………(A.6)
式中:
Nm ——场地中1h内平均完成n个考试科目的最大人员数,单位为人;
T ——被考人平均完成n个考试科目所需的时间,单位为秒(s);
t ——车辆在干道上运行的时间(含换人时间),单位为秒(s);
ti ——驾驶人完成每个考试科目所需时间(含支线运行时间),单位为秒(s)。
点击下载:17105052609.doc
|